AHŞAP STRÜKTÜRLÜ LOJMAN BİNASI
DETAYLAR- PROJE : AHŞAP STRÜKTÜRLÜ LOJMAN BİNASI
- PROJE DURUMU: TAMAMLANAN PROJELER
- Proje Yeri / Tarihi: KAHRAMANMARAŞ/2024
- İŞ VEREN: Orman İşletme Müdürlüğü - Andırın Orman İşletme M
- PROJE KONUSU: KONUT LOJMAN PROJESİ- ÖZEL STRÜKTÜR
Andırın Ahşap Strüktür Projesinde İleri Mühendislik Çözüm Ortağı Olmaktan Gurur Duyuyoruz!
Orman Genel Müdürlüğü direktörlüğünde, ülkemizde yaşanan 6 Şubat depremleri sonrası başlatılan ve yurtdışı örnekleri yüksek katlı ahşap yapıları referans alarak ilerleyen planlama da, tüm deprem bölgesi ve Türkiye genelinde ahşap yapı tasarımı konusu ele alınmıştır.
Proje kapsamında özellikle deprem bölgesinde Bakanlık personelinin kullanacağı lojman binaları ahşap strüktür üzerinde yenilecek ve yapı davranışları gözlemlenecektir. Mevcut yapı standartlarımızda ahşap yapılara ait standartlar iyileştirilmeye gidilmiş ve daha çok araştırılmaya, standartlar tekrar düzenlenmeye başlanmıştır. Bu kapsamda devam eden alçak katlı lojman binaları imalat bilgileriyle, mevcut yapı standartları gözlemlere göre tekrar şekillenmekte ve geliştirilmekte, gelecek yıllar da daha yüksek katlı ahşap yapı standartlarına referans olmaktadır.
Kahramanmaraş’ın Andırın ilçesinde, bölgenin iklimsel şartları ve doğal dokusu göz önünde bulundurularak projelendirilen ahşap strüktürlü lojman binasını anahtar teslim olarak tamamladık. Betonarme karkasın sağlamlığını ahşabın sıcaklığı ve hafifliği ile birleştiren bu proje, sadece bir barınma alanı değil, aynı zamanda çevreci bir mühendislik örneğidir. Yüksek ısı yalıtımı sağlayan, depreme dayanıklı ve sürdürülebilir malzeme kullanımıyla inşa edilen bu yapı; Andırın’ın yerel kimliğine modern bir dokunuş kazandırmıştır.
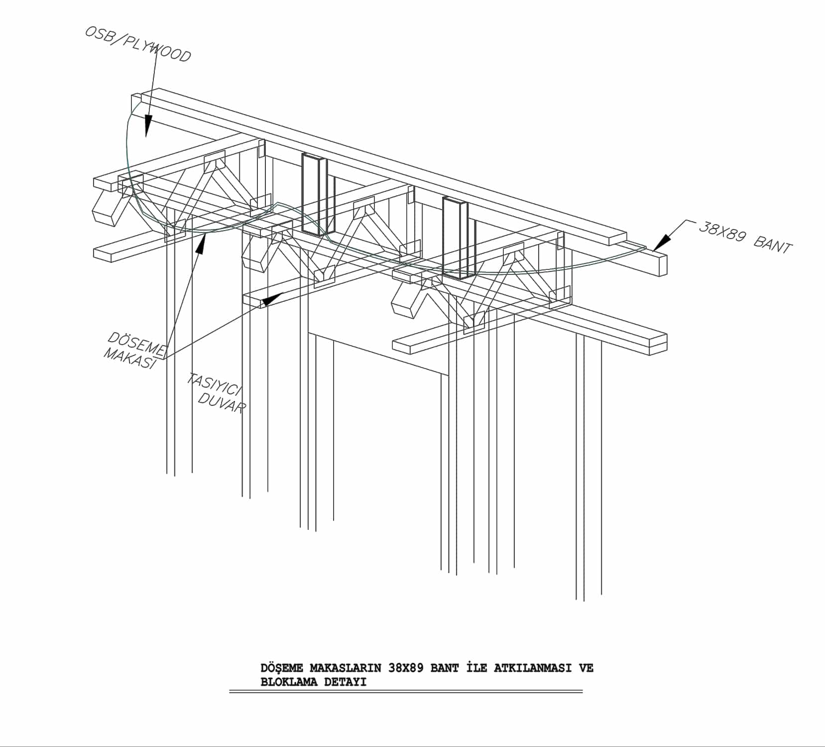
Binanın çekirdek sistemi ve toprak altında kalan bodrum katı betonarme olarak inşa edilmiştir. Zemin kattan itibaren Taşıyıcı Sistem, Çapraz lamine ahşap (CLT) paneller ve yapıştırma lamine ahşap (glulam) kolon-kiriş sistemidir. Deprem güvenliği için metal bağlantı elemanları ile sistem güçlendirilmiştir. Ahşap kaplama, doğal taş detaylar, yüksek yalıtımlı cam sistemleri kullanılmış, yapının ısı, nem ve yangın dayanımına uygun olarak ahşap strüktür koruması sağlanmıştır.
Proje, Orman Genel Müdürlüğü’nün doğaya saygılı ve sürdürülebilir vizyonuna uygun olarak, tamamen ahşap taşıyıcı sisteme sahip, modern bir lojman yapısı olarak geliştirilmiştir. Hem çalışanların konforunu sağlayacak, hem de çevreye minimum etki bırakacak şekilde tasarlanan yapı, ekolojik mimarlığın örneklerinden biri olmayı hedeflemektedir.


